View navigation in the graphical editor
(Redirected from HelpRedirectPageHS77)
| Product | InstalSystem 5 |
| Type of article | FUNCTION AND TOOL |
| Source for translation | 2026-03-09 |
Description
This page presents the rules of navigating in the design area in 2D editor and 3D view windows.
Location in the program
The following can be used for navigation:
- Mouse
- Main tools - View
- Navigation cube
Example of use
| Effect | Default action |
|---|---|
| Zoom in / Zoom out | Scroll the mouse wheel |
| Move | Move the mouse + mouse wheel depressed |
| Move up / down | Scroll the mouse wheel + Ctrl |
| Move right / left | Scroll the mouse wheel + Shift + Ctrl |
| Effect | Tool |
|---|---|
| Zoom in | |
| Zoom out | |
| Show all | |
| Find critical circuit/route | |
| Move | |
| Zoom in Rectangle | |
| Show all from active edit scope |
Use Graphic grid and GNET modes to facilitate accurate drawing of the Building structure and installation elements. Available in the blue Status Bar or using the short key Ctrl + G.
| Effect | Default action |
|---|---|
| Zoom in / Zoom out | Scroll the mouse wheel |
| Move | Move the mouse + mouse wheel depressed |
| Move up / down | Scroll the mouse wheel + Ctrl |
| Move right / left | Scroll the mouse wheel + Shift + Ctrl |
| Rotate view in 3D | Move the mouse + mouse wheel depressed + Ctrl |
| Effect | Tool |
|---|---|
| Zoom in | |
| Zoom out | |
| Show all | |
| Find critical circuit/route | |
| Move | |
| Zoom in Rectangle | |
| Show all from active edit scope |
| Effect | Default action |
|---|---|
| Rotating the view up - down, right - left | Grab the cube at any point and move the mouse |
| Switch to predefined view (side view, isometric view) | Click the corner, face or edge of cube |
| Rotate 3D view without changing the viewing angle | Grab the ring under the cube and move the mouse |
| Switch to predefined view (selected cardinal direction) | Click the cardinal direction on the ring |
Сommon 3D model view
| Effect | Function |
|---|---|
| Turn On / Off visibility of the 3d model edges | Edges view of the 3D model |
| Turn On / Off perspective view of the 3d model | Perspective view |
| View mode | Realistic mode Architectural mode Flat mode |
| Turn On / Off elements shadows visibility of the 3d model | Elements' shadows |
| Turn On / Off 3D view rotation animation | View rotation animation |
| Turn On / Off visibility of the 3d model storey levels | Storey levels visibility |
| Change the Workspace background colour for 2D editor and for 3D view | Workspace background colour |
Construction elements' visibility
| Effect | Function |
|---|---|
| Present / hide all walls in 3D view | Present all walls in 3D view / Hide all walls in 3D view |
| Present / hide all slabs in 3D view | Present all slabs in 3D view / Hide all slabs in 3D view |
| Present / hide all roofs in 3D view | Present all roofs in 3D view / Hide all roofs in 3D view |
| Turn On / Off Visualization of Floor thickness and Thickness of false ceiling (according to the data from the General data) | Turn on: %s Visualization of Floor thickness and Thickness of false ceiling / Turn off: %s Visualization of Floor thickness and Thickness of false ceiling |
| Turn On / Off Net volume area of the Room | Turn on: %s Net volume area (3D) – Full building structure only / Turn off: %s Net volume area (3D) – Full building structure only |
Сhanging the storey visibility is operative for the Building structure and for all installations included in the project.
- To keep the storey in use visible, turn off the visibility of the rest storeys;
Note: elements belonging to all levels remain visible (e.g. stairwells, risers). - To quickly switch on the visualisation of the whole building, turn on the visibility of the Building.
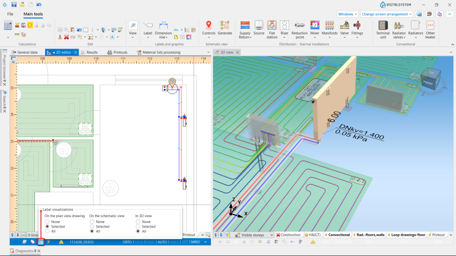
Label visualizations
| Effect | Function |
|---|---|
| Enable / disable element label visualisation On the plan view drawing, On the schematic view and In 3D view: | Label visualizations: |
| All labels are invisible (project preview mode) | None |
| Floating label, Simplified label and Perpendicular label are not visible; labels for "large surfaces" (Room, Heating/Cooling Zone, etc.) remain in view, allowing the selection of these elements | Selected |
| All labels are visible | All |

Installation elements' visibility
| Effect | Function |
|---|---|
| Enable / disable elements visualisation | Installation elements' visibility |
Partitions visibility in H&E(T) scope
For the precise verification of thermal partitions use the function Partitions visibility, located on the working menu and on the status bar for the H&E(T) scope.
For more information, see: Checklist for verifying thermal partitions.